
3 Rum, Storlek 73 m²
Naturnära trea på bottenplan
3 Rum, Storlek 73 m²
Gaffelseglet 44, 136 56 VegaDen här bostaden är såld. Söker du något liknande?
Sök liknande nyproduktion
Du behöver acceptera användningen av tredjepartstjänster för att se den här kartan.
Naturnära trea på bottenplan
Att bo på bottenplan har sina fördelar. Din uteplats blir som en liten trädgård i anslutning till innergården och du får på så sätt mer gemenskap. Du bor dessutom i ett grannskap som ligger granne med naturen.
Genom att bo i Newton får du det bästa av två världar – du tar dig lika lätt till citypulsen i Stockholm som till naturreservatet. Och på dina 73 kvadrat har du både förvaringsmöjligheter och öppna, sociala ytor.
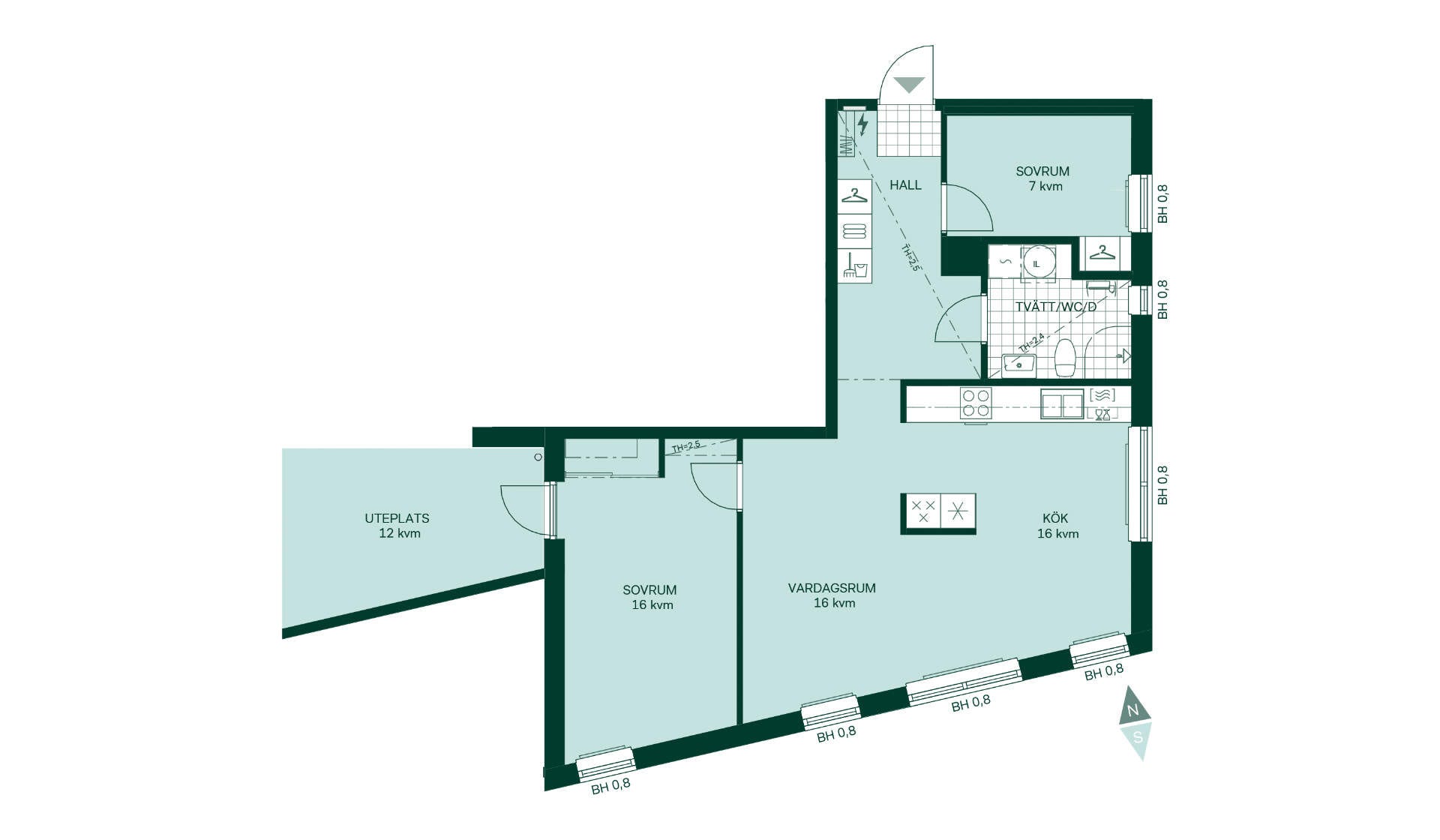
Hall
Din hall är en välkomnande punkt i hemmet som rymmer både dig och dina ytterkläder. Här finns garderob och städskåp.
Sovrum 2
Till vänster om hallen hittar du hemmets kanske mest avkopplande plats på sju kvadrat; sovrummet. Här finns en garderob och plats för en säng.
Badrum
Intill sovrum 2 ligger hemmets badrum. Här finns en tvätthörna med tvättmaskin och torktumlare samt en hörndusch.
Kök
Fortsatt in i lägenheten ligger köket. Här finns fristående kyl och frys, ordentligt med bänkyta att laga mat ihop på samt rum för ett matbord. Dessutom finns en energisnål diskmaskin som gör vardagen lite mer bekväm för hushållet.
Vardagsrum
I halvöppen planlösning till köket hittar du det rymliga vardagsrummet. Här finns plats för en stor soffhörna – en riktig samlingsplats för familjen.
Sovrum 1
Bredvid vardagsrummet ligger hemmets största sovrum på 16 kvadrat. Här finns skjutdörrsgarderober och ordentligt med yta för en dubbelsäng. Det är från detta rum du når hemmets uteplats.
Uteplats
Uteplatsen är på hela 12 kvadrat och rymmer allt från sociala tillställningar till egentid med boken. Kanske planterar du dina egna grönsaker på uteplatsen? Den ligger ut mot den grönskande innergården och låter dig både vara social med grannarna och njuta på egen hand.
Fördelar med Newton
- Gemensamt växthus och pergola
- Solceller
- Nära Vega pendeltågsstation
- Nära natur, vatten och friluftsområden.

Ditt hem är Svanenmärkt. Det har god ljudisolering, bra ventilation och är energisnålt.
Läs mer om Svanenmärkningen.
![]()
2 rum och ett rymdskepp
För små upptäckare väntar en lekplats med forskningstema på grannskapets lummiga innergård, precis utanför dörren. Här finns gott om plats för nyfikenhet, fantasi och kreativitet, tillsammans med en stor skopa lek och bus. Kanske är det just här nästa stora tänkare börjar utforska en liten del av världen?
![]()
4 rum och ett växthus
På den lekfulla gården finns även ett grönskande växthus. Här ryms plats för både rik växtlighet och ett sällskap för tio personer runt bordet. Avnjut en söndag och så växter eller odla, eller bjud in grannar och vänner till sommarfest för en stund i grannskapets alldeles egna grönskande oas.
![]()
3 rum och rymdkalas
När det vankas kalas för de små upptäckarna kan du med fördel arrangera det i gemensamhetslokalen på 40 kvadrat. Här finns pentry och stort kalasbord med plats för 20 glada barn. Lokalen ligger på entréplan med anslutning till gården där upptågen kan fortsätta efter tårtan, eller varför inte bara öppna upp och servera grillade burgare från el-grillen?
![]()
Skolor och förskolor
För barnfamiljerna planeras flera förskolor i området. Här ska också en helt ny skola starta, från förskoleklass upp till och med årskurs 9. Vill du utforska andra alternativ så har Haninge ett brett utbud av skolor för alla åldrar, från förskoleklass upp till gymnasiet och vidareutbildning, som du enkelt når via kommunala färdmedel eller cykel.

Du behöver acceptera användningen av tredjepartstjänster för att se den här virtuella rundturen.



